Filmstadens nyaste
sevärdheter,
en titt på Råsunda filmstad och dess hypermodärna laboratorium.
Filmnyheter,
nr 7, 1920
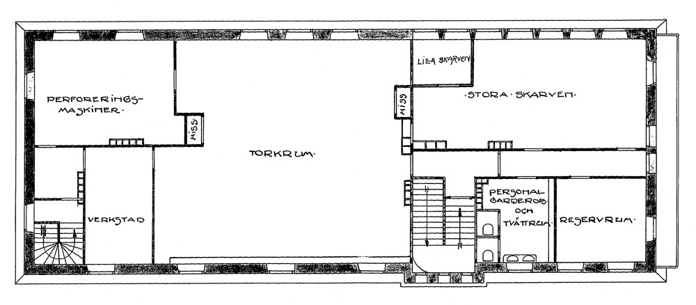
Vid en rundvandring genom
laboratoriet under ciceronskap av dess chef, herr Julius Jaenzon, frapperas man
av de praktiska anordningarna. Överallt, där så är möjligt, äro rummen
stora, ljusa och luftiga – även mörkrummen äro rymliga och väl
ventilerade. Inalles sysselsättas ett 50-tal personer å de olika
avdelningarna.
Den från utlandet
importerade råfilmen – såväl den negativa som positiva – föres att
börja med upp till tredje våningen, där den perforeras, vilket tar
cirka 15 min. för 120 meter (den vanliga längden på en importerad
råfilmsrulle). Därpå skickas filmen med hiss ned till
kopieringsavdelningen, där ett 20-tal maskiner arbeta. Deras
sammanlagda kapacitet är – räknat efter 7 timmars arbetsdag – över
30.000 meter per dag.
Från kopieringen går
filmen in i stora framkallningsrummet, där den lindas upp på träramar,
blötes och nedsänkes i framkallningsbaden – proceduren är precis
densamma som vid vanlig fotografering.
Filmrullarna föres sedan
med hiss upp till andra våningen och läggas där i resp. färgbad,
kemiska såväl som anilinfärgbad. Inalles har man ett 30–tal färger att
tillgå, men i praktiken väljer man någon lämplig bland 7 à 8 i blått,
grönt, gult o. s. v.
Härefter åker filmen upp
till den stora, mycket ”dragiga” sal, där det stora torkhjulen rotera.
En 120-metersfilm beräknas här torka på 12 min. Så rullas filmen upp på
vanliga små filmhjul, sorteras och hopskarvas i stora skarvsalen.
Slutligen tvättas den glansiga sidan av filmen noga ren. Nu är filmen
äntligen klar och inpaketeras på kontoret för att översändas till de
olika avdelningar, som skola vidare befordra filmen till in– och
utlandet.
Klicka
här om du vill se bilder från labbet i Råsunda.
Och här om du vill se bilder från Svenska Bio:s
filmlaboratorium
på Malmskillnadsgatan 54 i Stockholm åren 1911-1920.
Filmstaden i Råsunda.
Laboratoriebyggnaden nu
fullt färdig.
Aftonbladet den 20/11 1920
På grund av byggnadsstrejken har Svensk filmindustri inte kunnat få sin
filmstad vid Råsunda färdig på den bestämda tiden. Ateljébyggnaderna ha
tidigare tagits i bruk och nu har man lyckats få laboratoriebyggnaden
fullt färdig, och densamma förevisades för pressen i går.
Den första procedur som en filmrulle måste genomgå är perforering.
Medelst moderna amerikanska maskiner kunna fyra 122 meters rullar
perforeras på en timme. Sedan vidtar kopieringsarbetet, som ävenledes
går med maskin. Filmrullen går därpå till framkallningssalen och vidare
till färgningssalen samt slutligen upp till den i översta våningen
belägna torksalen. På jättevindor rullas filmen upp och torkningen går
mycket fort, tack vare vindornas hastiga rotation.
Nu har filmen hunnit till det stadium att den skall hopsättas, och för
det arbetet har man en särskild stor sal. […] I samma våning genomgår
filmen en tvättningsprocedur innan den förses med texter och sändes ut
i världen.
Alla laboratoriets lokaler äro stora och präktiga, däremot kan man inte
säga ljusa i några fall, ty i perforerings-, kopierings- och
framkallningssalarna måste man naturligtvis arbeta vid röd belysning.
De andra lokalerna däremot äro ljusa och luftiga och all personal är
iklädda vita, fotsida rockar. Allt som allt innehåller laboratoriet 23
rum och personalen uppgår till omkring ett 50-tal personer. Chef för
laboratoriet är hr Julius Jaenzon.
Hur den aktuella
journalbilden kommer till.
Praktiska arrangemang möjliggöra bildens framställning på en timme.
Filmnyheter,
nr 3, 1923
[...] Alltså! Vi ha hört
att en eller annan förnämitet anländer med tåget till Centralstationen
vid 3-tiden på eftermiddagen. Den höge främlingen anländer,
filmoperatören vevar och 5 minuter senare susa vi iväg mot Haga och
Råsunda. Portvakten väntar med öppna grindar och i rasande fart fara vi
in, göra en sväng åt vänster och köra fram till stora trappan.
Fotografen förser sin
kassett med beteckningen ”express” och lämnar den till expeditionen en
trappa upp, varefter den omedelbart skickas till
negativframkallningsrummet, beläget i samma våning. I mörkrummet tages
den exponerade filmrullen ur kassetten, lindas upp på en ram, som har
plats för 60 meter, varefter denna sätts ner i ett av de 4
framkallningskaren. Amatörfotografen förstår nog med vilka mått man rör
sig här ute, när ”framkallaren” omtalar att varje kar rymmer omkring
300 liter framkallningsvätska. I varje kar finns plats för 3 ramar, och
då, som sagt, varje ram rymmer 60 m., kan man således samtidigt
framkalla 180 meter film i varje kar. Framkallningen tar en tid av 7-15
minuter, beroende på ljusförhållandena och de olika filmsorternas
ljuskänslighet. När filmen är framkallad går den direkt ner i
fixerbadet, som finnes i kar av samma utseende och sort som för
framkallningsbadet.
Efter fixeringen tål
filmen dagsljus, men då det kan tänkas att det i mörkrummet finnes
annan oframkallad eller ofixerad film, föres den fixerade bilden icke
direkt ut i dagsljuset. För att en aktuell bild icke skall bli fördröjd
ens några minuter, har man anordnat ett s. k. automatiskt ljuslås
mellan mörkrummet och dagsljusrummet, där filmen sköljes. Detta ljuslås
utgöres av en vattenfylld trumma, som genom väggen förenar de båda
rummen och som går så långt in i båda, att en filmram kan sättas ner,
respektive tagas upp. Det automatiska består i att när man öppnar
trumman på mörkrumssidan för att sätta in en ram, reglas locket på
dagsljussidan, och när man för att taga upp en ram på dagsljussidan
öppnar här, reglas locket i mörkrummet.
När filmen är sköljd,
hissas den – fortfarande upplindad på ramar – medelst en
paternoster-anordning upp till våningen två trappor upp för att torkas.
I torkrummet finns 8 stycken motordrivna torktrummor – vardera rymmande
cirka 250 meter – och på dessa torktrummor upprullas nu filmen från
ramen. Motorn – var trumma har sin motor för att icke vara beroende av
de andra – sättes i gång och efter 8 à 15 minuter, beroende på
väderlek, är filmen torr och kan rullas från trummorna ner i stora,
flanellklädda boxar, varifrån den sedan upprullas i rullar och föres
till negativ-skarvsalen, där negativen renklippes, d. v. s. befrias
från oexponerade filmrutor, sladdar o. s. v. Därefter granskas det och
klippes samman till passande längder.
Nu är negativets
behandling klar, men innan positivprocessen kan vidtaga, d. v. s. innan
kopieringen kan äga rum, genomgår det en mycket betydelsefull
granskning, täthetsbedömningen, varmed menas en bedömning av negativets
större eller mindre förmåga att släppa genom ljus, vilket beror på vid
exponeringen rådande ljusförhållanden. Denna granskning är synnerligen
viktig, ty all kopiering här ute sker medelst en helautomatisk
kopieringsmaskin, det allra nyaste och finaste på filmteknikens område.
Det är en riktig trollerimaskin, som, sedan granskningsmannen gjort
sina märken i negativet, själv bestämmer olika ljusstyrkor, vid olika
exponerade bilder, således ändrar ljusstyrkan för varje motiv och på så
sätt utjämnar varje ojämnhet i negativets täthet.
Maskinen har konstruerats
i Amerika av två svenska ingenjörer.
Nu har vi således fått en
kopia på negativet. Denna kopia måste sedan, liksom ett vanligt foto,
framkallas och fixeras, vilket utföres i ett särskilt framkallningsrum
i samma våning. Sedan detta är gjort föres positivet med en elevator
till mellersta våningen, där det färgas och tonas. Färgningen går till
på så sätt att filmen doppas i ett anilinbad av önskad färg, toningen
åter är en kemisk process, vid vilken dagrarna bli orörda.
Från färgningen eller
toningen torkas positivet, alldeles som negativet, i stora torksalen,
och går därefter in i skarvsalen, där filmen förses med texter, avdelas
för akter eller avdelningar, eller i detta fall sätts till andra redan
förut tagna dagsbilder. Sedan den hopsatts eller avdelats sätts filmen
i en sinnrik tvättmaskin, som befriar positivets baksida från
eventuella färgdroppar eller intorkad orenhet och som uppger filmens
exakta längd.
Från det vi med filmen
gjorde vår entré till nu, när positivet är färdigbehandlat, har åtgått
endast en timme. Ett vackert rekord, inte sant! Men så har också det
invecklade maskineriet i laboratoriet fungerat utan mankemang från det
att fotografen lämnade sin kassett till expeditionen till att det
färdiga positivet föres ner till provteatern för att provköras och
underkastas den sista stränga granskningen.
S.F. kopierar 600
meter varje timme.
En maskin i flera rum
uträttar arbetet i ett.
Fluga och propeller
lämna samma läte.
Dagens
Nyheter, den 23 september 1931.
I Råsunda filmlaboratorium har man i dagarna fått ett värdefullt
tillskott till sin apparatutrustning, t.o.m så värdefullt att man
hädanefter endast tänker behålla den gamla anläggningen som en liten
reserv, om den nya maskinen vid något tillfälle skulle klicka. Det rör
sig om en framkallnings- och kopieringsapparat, som tycks
vara ett rent
under både vad precisionen och kapaciteten beträffar. Inte nog med att
den inskränker de många olika momenten vid en films framkallning och
kopiering till en enda stor procedur, den spottar även gladeligen ut
sex hundra filmmeter i timmen, eller jämnt dubbelt mot vad man förut
kunde åstadkomma.
Den alltomstörtande ljudfilmens verkningar inskränka sig nämligen icke
endast till den påtagliga och hörbara förändringen att den konstart som
ända tills för två, tre år sedan var stum nu hastigt och lustigt blivit
i högsta grad talför och mer eller mindre välljudande. Filmframförandet
i biograferna har blivit ett helt annat, och även inspelningstekniken
har radikalt förändrats. För att icke störa den ljudkänsliga
mikrofonen, där inom parentes sagt en flugas surr kan få samma
ljudvalör som dånet av en flygmaskinspropeller, ha ateljéerna utrustats
med madrasserade väggar och tystgående kameror, strålkastare och
jupiterlampor ha inbyggts i absolut ljudtäta fodral, och regissören,
som under stumfilmens glansdagar vanligen avbildades skrikande i en
megafon av jätteformat, har nu blivit en tyst och stillsam herre, som
smyger omkring i filttofflor och talar ett slags dövstumspråk med sina
sujetter så länge inspelningen pågår.
Ljudfilmen ändrade
framkallningsmetoden.
Även laboratoriearbetet har
helt omlagts. Man har fått en helt ny faktor att räkna med — ljudet —
och filmens framkallning och kopiering har därigenom blivit en långt
omständligare procedur, än någonsin under stumfilmstiden. En aldrig så
liten defekt på ljudremsan medför skorrningar i biografhögtalaren och
då man hittills varit tvungen att behandla den exponerade filmremsan
antingen hand för hand eller i ett flertal olika maskiner, har det
visat sig praktiskt taget nästan omöjligt att helt borteliminera smärre
fel och ojämnheter på tonbilden. De större filmbolagen på kontinenten
och i Amerika ha därför försökt inskränka de många olika momenten i
framkallningen och kopieringen till en enda stor procedur, i det att
man låtit filmen löpa igenom en kombinerad maskin, där framkallning,
tvättning, sköljning och torkning ske i automatisk följd utan att
filmgelatinet någon gång behöver beröras av människohand. Resultatet
har också genast visat sig bli ett helt annat. Ljudkvaliteten har
blivit jämnare och det skorrande biljuden i högtalaren försvunnit.
Dubbel så fort som förut.
I vårt svenska Hollywood ute i Råsunda där man tydligen vill vara lika
up to date som i andra filmateljéer, har man nu anskaffat en dylik
apparat, och installeringen har i dagarna framskridit så långt att den
på tisdagen kunde visas i fungerande skick för pressen. I samband med
inmonteringen han man även vidtagit vissa utvidgningar och omdaningar,
men enligt vad som meddelas står Råsundalaboratoriet nu fixt och
färdigt att både kvalitativt och kvantitativt möta de skärpta krav som
ljudfilmen ställt. Anläggningen har för övrigt redan delvis tagits i
bruk vid inspelningen av ”En natt”,
och för närvarande rullar de ena
hundratals färdigkopierade filmmeter ut efter det andra. På samma gång
som laboratoriets kapacitet avsevärt ökats har man kunnat göra vissa
inskränkningar i arbetskraften. Man räkna med att arbetet nu går nästan
dubbelt så fort som förut, och mot de tre hundra meter som man förut
kunde åstadkomma i timmen, med den gamla maskinella utrustningen, kan
man nu på samma tid få fram sex hundra.
För en icke fackman var det ganska svårt att förstå alla tekniska
finesser och tillkrånglade termer, men att döma av de förtjusta
ögonkast med vilken S.F.-chefen Olle Andersson betraktade sitt
nyförvärv, kan man ungefär dra den slutsatsen att apparaten för
filmfolket i Råsunda hade lika stor världshistorisk betydelse som
exempelvis uppfinningen av krutet och boktryckerikonsten för vanliga
dödliga.
I laboratoriets bottenvåning äro uppställda maskiner i två mörkrum med
olika ljus samt ett gemensamt ljusrum, där tvättning och torkning av
filmen äger rum. Det ena av mörkrummen är avsett för den pankromatiska
negativa filmen, som på grund av sin större ljuskänslighet måste
behandlas särskilt varsamt och endast får utsättas för grönt ljus vid
framkallningen, medan den positiva kan behandlas i rött ljus eller gult
ljus.
Kassetterna med den exponerade filmen anbringas på ett rörligt centrum,
och framkallningsvätskan befinner sig i ett antal meterlånga tuber,
genom vilka filmen föres. Utan avbrott ledes filmbandet därpå genom
vatten och sedermera genom fixervätskan, varefter den utan avbrott
fortsätter sin bana in i det ljusa rummet och in i torkskåpet. Polerad
och färdig upprullas filmerna sedan på hjul, varefter de praktiskt
taget äro premiärfärdiga.
Filmindustris
nya laboratorium.
De allra modernaste framkallnings-
och kopieringsmaskiner inmonterade.
Biografägaren,
26 september 1931.
Ljudfilmens entré har
naturligtvis medfört väsentliga, i viss mån revolutionerande ändringar
i framställandet och framförandet av film. Själva inspelningssättet har
delvis blivit ett annat och kräver nya och dyrbara apparater, och
biografägarna ha tvingats för betydande kostnader anskaffa en helt ny
apparatur. Dessa två konsekvenser har varit i ögonen fallande. Vad som
däremot mera undandragit sig uppmärksamheten, ha varit de betydande
omläggningar av laboratoriearbetet, som blivit en ofrånkomlig följd.
Även om redan stumfilmen fordrat den omsorgsfullaste behandling, måste
ljudfilmen genomgå en ännu noggrannare procedur för att motsvara de
anspråk, som med fog kunna ställas på den.
Man har hittills antingen
för hand eller i olika maskiner behandlat det exponerade filmbandet.
Detta förfaringssättet har varit fullt tillfredställande i fråga om
stumfilm. När det gäller ljudfilm, har det emellertid visat sig att
även med långt driven yrkesskicklighet har det icke kunnat undvikas att
denna metod stundom kunnat medföra en viss ojämnhet i ljudremsan. Det
har varit tydligt att denna måste underkastas en alltigenom likartad
behandling, vilket endast kan ske i en enda kombinerad framkallnings-,
tvätt-, skölj-, och torkningsmaskin, och på olika håll har man haft
uppmärksamheten riktad på framställandet av en maskinell konstruktion
av detta rätt invecklade slag. Den framstående franska firman Debrie i
Paris har på ett synnerligen lyckat sätt löst denna viktiga fråga –
firmans konstruktion fyller även de högsta anspråk och lämnar ett
arbete som icke i någon mån ger fog för anmärkningar.
A.-B. Svensk Filmindustri
som alltid haft blicken öppen för den tekniska utvecklingen och med
uppmärksamhet följt de uppfinningar och nya konstruktioner som
framkommit, har nu anskaffat en maskinell anläggning från nämnda firma.
Inmonteringen av detsamma och de därav föranledda omdaningarna och
utvidgningarna ha varit av genomgripande slag, och Råsundalaboratoriet
står nu rustat att i full utsträckning, både kvantitativt och
kvalitativt, möta de nya och skärpta krav som rests genom ljudfilmen i
detta avseende. Ehuru anläggningen icke varit så färdig att den förut
kunnat visas, har den redan tagits i bruk bl. a. för filmen En natt,
där den utomordentligt jämna och lyckade ljudkvalitén till avsevärd del
får skrivas på den nya anordningens konto.
Den nu färdiga
installationen, den enda i Skandinavien, medför förutom ett fullgott
arbetsresultat även andra fördelar. På samma gång som laboratoriets
kapacitet högst avsevärt ökas kunna vissa besparingar i fråga om
arbetskraft göras. Att kraven på renlighet kunna tillgodoses på ett
annat sätt än förut och personalen sålunda beredes större trevnad, äro
omständigheter som inte heller böra förbises.
En kort redogörelse för
filmens behandling i den nya maskinen torde kunna påräkna intresse.
I laboratoriets
bottenvåning äro uppställda två maskiner i två mörkrum med olika ljus
samt ett gemensamt ljusrum, där tvättning och torkning av filmen äger
rum. Det ena av mörkrummen är avsett för den pankromatiska negativa
filmen, som på grund av sin större ljuskänslighet måste behandlas
särskilt varsamt och endast får utsättas för grönt ljus vid
framkallningen, medan den positiva filmen kan behandlas i rött eller
gult ljus.
De från ateljén eller
kopieringsrummet kommande kassetterna med den exponerade filmen
anbringas på ett rörligt centrum. Framkallningsvätskan befinner sig i
ett antal meterlånga tuber, genom vilka filmen föres över rullar, som
håller filmbandet å ett visst djup i vätskan, allt efter den tid filmen
måste genomgå framkallningsbadet. Denna fastställes på förhand genom
försök å varje särskild upptagning. Utan avbrott ledes därpå filmen
genom vatten och sedermera även fixervätskan, förvarad i liknande kärl
som framkallningsvätskan. Nu är filmen färdig att lämna mörkrummet och
fortsätta utan avbrott sin bana in i det ljusa rummet, där den
ytterligare sköljes. I oavbruten följd fortsätter filmbandet in i
torkskåpet, där det under sitt lopp upp och ned utsätts för en
upphettad luftström, som hastigt kommer vidhäftande vätska att
avdunsta, och polerade och färdiga till omedelbar användning upprullas
filmerna sedan på filmhjul och vidarebefordras till granskning etc.
Alla de beskrivna kärlen
för vätskor och vatten påfyllas automatiskt genom ett helt invecklat
system av rörledningar, pumpar, flottörer och burkar. Ventilationen av
torkrummet ombesörjes av en fläktanordning, kombinerad med elektriska
element och vid särskilt låg yttertemperatur även med
varmvattenselement för luftens uppvärmning. Dessa apparater upptaga
större delen av våningen två trappor upp.
Utan beröring av
människohänder har filmen alltså genomlupit en kedja av operationer,
för vilka fordom erfordrades en mängd olika handgrepp, och den
framkomna produkten blir nu också av fullgod beskaffenhet, i varje
detalj motsvarande även de högst ställda anspråk.
Ur
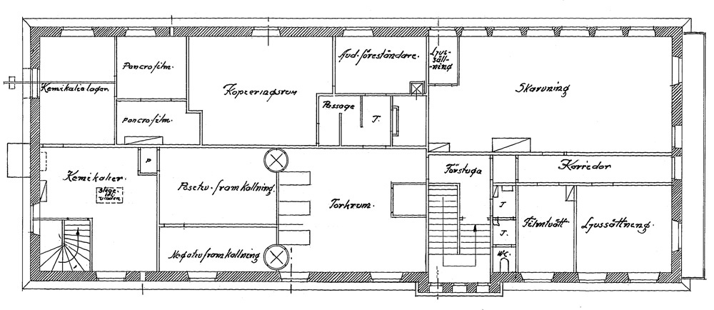
SF-broschyren Filmstaden i Råsunda, från juni 1931:
Laboratoriet är i tre våningar och inrymmer lokaler
för den inspelade filmens framkallning, sköljning, kopiering,
ljussättning, torkning, skarvning, ävensom ett tryckeri. Det är i varje
detalj utrustat med de modernaste tekniska anordningar, samt till skydd
mot eldfaran uppfört i uteslutande brand- och explosionssäkert material.
En trappa leder upp till
mellanvåningen och här kommer vi först in i laboratoriets kontor, där
också övas sträng tillsyn att inga obehöriga slipper in. I denna våning
finns lokaler för behandling av negativfilmen, för framställning av
reklamfotografier samt kemikalieupplag. Undre våningen upptages av
mörkrum för positivfilmen, kopieringsrum, sätteri för filmtexterna och
arkiv. Tredje våningen slutligen inrymmer ett stort torkrum samt
lokaler för skarvning av filmen.
Framkallning av
bildnegativet försiggår i ett rum, som är så gott som fullständigt
mörkt, upplyst endast av ett par lampor med gröna filter. Efter
framkallningen fixeras filmen och sändes sedan ut i sköljrummet.
Tonnegativet framkallas i ett annat rum, där rött ljus får användas, då
denna film ej är fullt så ljuskänslig som bildfilmen. Efter sköljningen
gå både ton- och bildnegativet till torksalen, och där uppsättes filmen
på stora torktrummor. När filmen är torr, går den vidare till ”skarven”
där den poleras med sprit på glassidan i en maskin, som samtidigt mäter
filmen. Härefter uppdelas de olika scenerna och synkronmärket, d.v.s.
ljudmärket, uttages.
Nu återstår
ljussättningen, eller, med andra ord, bedömandet av den ljusstyrka, som
är den lämpliga vid kopieringen av såväl ton- som bildnegativ, och
bilden kopieras i en kopieringsmaskin. Härpå spolas råfilmen om och
tonen påkopieras, varvid noga måste tillses, att synkronhålen i
råfilmen och tonnegativet sitter mittför varandra. Filmen lämnas nu in
i positivframkallningen, där den lindas på ramar och framkallas,
fixeras och sköljes och går så åter till torkrummet och torkas på
trummorna. Så sker hopskarvning i nummerordning i skarvsalen i sinnrika
maskiner, och filmen är färdig för en första provkörning.
Beträffande laboratoriets
maskinella utrustning kan nämnas att det i närvarande stund finns 10
dubbla kopieringsmaskiner, 3 tonkopieringsmaskiner, 8 torktrummor, 3
skarvmaskiner. Arbetskapaciteten kan, om så skulle behövas, komma upp
till cirka 15.000 meter film per dag, och årstillverkningen rör sig om
cirka 2 miljoner meter.
Klipsk herre
SF-nyheter nr 39, den 11 - 17 december 1939

Eugén Hellman, expert på
negativklippning, tonmontage, ljussättning, har med ”Kadettkamrater”
klippt sin hundrade ljudfilm, som också var den svåraste.
Inom den för alla utomstående svårtillgängliga Filmstaden finns ett
särskilt avskilt och välbevakat område och det är laboratoriet. När av
en eller annan anledning besökare tas emot i Filmstaden för att se
ateljéer och inspelningar, är och förblir i regel laboratoriets helgade
område stängt, populärt sett är väl inte heller denna rent tekniska
institution så lockande för den stora allmänheten som filmens värld i
övrigt. Hur filmen framkallas, torkas, kopieras, klippes, skarvas,
ljussättes, mätes, hur tonmontaget lägges på och texter inkopieras, är
det bara ett försvinnande fåtal specialister förbehållet att begripa
något av och inom den särskilda litet avsides belägna [laboratorie-]
byggnad, där allt detta sker, möter man inga berömda filmstjärnor i
närbild, där regerar den tekniska sakkunskapen, representerad av män i
vita rockar och oftast svarta skyddsglasögon, över sinnrika
ultramoderna apparater och maskiner med för den oinvigde helt
obegriplig funktion. Det är endast i undantagsfall namnet på någon av
dessa män i vitt når utom filmvärldens begränsade krets. Ändå
representera de var på sitt område en otrolig och från icke sakkunniga
oangriplig grad av speciell filmteknisk kapacitet. En kritiker med föga
personlig erfarenhet av filmarbete kan utan större risk att dabba sig
bedöma film ur regi-, manuskript-, spel-, musik-, foto- eller
ljudsynpunkt, men skulle han ge sig in på vågstycket att söka analysera
en film som laboratorieprodukt, skulle han säkert snart finna, att han
givit sig in på ett område, som det behövs åratals studium och stor
praktisk erfarenhet för att ens tillnärmelsevis behärska.
En av dessa män i vitt och en av de mest och längst beprövade i det
tekniska arbetet i filmens vingård är Eugén Hellman. Han kom i tjänst
hos Svensk Bio, som sedermera uppgick i Svensk Filmindustri, för den 2
januari 1940 jämnt 25 år sedan. Hur många filmer han under de 25 åren
arbetat med har han inte själv hållit räkning på, bland dem återfinnes
emellertid ”Dunungen”, ”Körkarlen”, och ”Gösta Berlings saga”. Men i
och med att SF:s senaste produktion ”Kadettkamrater” nu föreligger
premiärklar har Eugén Hellman, antingen ensam eller tillsammans med
någon medhjälpare, avslutat sin hundrade ljudfilm. Den första var ”För
hennes skull” år 1930. Alltså ungefär 11 filmer pr år, en aktningsvärd
prestation, inte minst i betraktande av vad allt ett dylikt arbete
innebär. Men så är också Eugén Hellman en av dem inom Filmstaden, för
vilka åttatimmarsarbetsdagen utgör ett okänt begrepp, honom kan man
oftast träffa därute hur sent som helst på kvällen, ja, kanske långt in
på nattkröken.
Negativklippning, ljussättning, tonmontage? Inte många ha en aning om
vad som förstås med dessa beteckningar. Möjligen då med den förstnämnda
beteckningen, som ju i någon mån anger vad saken gäller. Men vad
innebär t. ex. ljussättning av filmen? Ja, utrymmet medger ju inte
någon tekniskt uttömmande förklaring, men i korthet sagt händer det
ofta att filmremsan vid själva tagningen, och främst då vid
exteriörtagningar, blir olika belyst, ljuset växlar från för- till
eftermiddag, från ena dagen till den andra. Det är någon som fotografen
inte kan göra något åt. Men det skulle se illa ut på duken om de olika
tagningarna i en och samma bildsvit skulle vara oenhetligt belysta. Vid
ljussättningen få alltså de olika delarna av filmen den starkare eller
svagare belysning som behövs för ett likvärdigt helhetsintryck, annars
kunde ju t. ex. en scen utanför en port se ut att vara tagen på
eftermiddagen i ena ögonblicket och i klart morgonljus i det andra.
Förr i världen, berättar herr Hellman, gjordes ljussättningen för hand
så att man satt och svängde en lampa av och an tills man fick den rätta
ljusstyrkan på filmen, numera sker givetvis detta som nästan allting
annat i maskin. Vad ljudmontaget beträffar så avses därmed att passa in
i bilden ljud av gatubuller, havsbrus, biltjut, skott etc. Rena
gatubilder, naturbilder o. d. tages i regel stumt och ljudet ”lägges
på”, som det heter på fackspråket, efteråt. För det ändamålet har man i
Filmstaden ett ljudarkiv, som även innefattar musik, där man till
husbehov kan plocka fram, låt oss säga, 10 meter Chopin, 5 meter
ångvissla, 21 salutskott eller så och så många meter rinnande vatten,
alltefter vad som behagas för tillfället.
Av de hundra ljudfilmer herr Hellman under årens lopp knogat med är det
fyra han framhåller som ett slags milstolpar därför att de varit de
svåraste: ”En natt”, ”Intermezzo”, ”Valfångare” och nu senast
”Kadettkamrater”. Frågan är om inte den sista varit den allra svåraste.
Så för den delen var det kanske lyckligt att den kom sist. Så att herr
Hellman hade hela sin föregående 99-filmiga erfarenhet att falla
tillbaka på under arbetets gång.
Personligen verkar Eugén Hellman i sin vita rock och med den klara
blicken bakom glasögonen något av läkare, sakligt lugn och
förtroendeingivande. Man förstår utan vidare att den film han har under
arbete är i goda händer.
Filmflugan.
[Eugén Hellman – ibland Hellmann – är
inte släkt med
Ferdinand Hellman, som drev Hellmans
filmtvätteri vid Vinterviken.]
Moderna magiker
SF-nyheter nr 24, 13 - 19 september 1943
En annan och viktig
person bakom filmens kulisser är ljudinspecienten. På honom vilar
ansvaret att kunna leverera alla de olika sorters ljud, som behövs i en
modern ljudfilm. Ur hans välförsedda lager kan man leverera
motorbuller, djurläten av alla de slag, ”folkets mummel”, gatularm,
klockringning, vattenbrus, småbarnsskrik, kort sagt alla de läten och
låtar, varav luften är fylld i ett modernt samhälle.
Enbart av gatubuller t. ex. har han en tjugu-trettio rullar och
grammofonplattor. En gata i Kina väsnas nämligen inte på samma sätt som
en boulevard i Paris.
Tack vare dessa välorganiserade ljudarkiv spar man mycket tid. Det är
naturligtvis en oerhörd vinst att inte för varje gång behöva åstadkomma
just det ljud som manuskriptet föreskriver utan att blott kunna plocka
ned det ur en hylla, som man plockar ner en bok, och så låta
laboratoriet sköta om resten.
Ji-Shib. [Ragnar
Allberg]
Laboratoriet i
Filmstaden
SF-nyheter nr 12, den 29 mars - 4 april 1943
Chefen för SF:s
Laboratorium i Filmstaden, civilingenjör Hilding Jakobsson, ger här en
mycket koncentrerad beskrivning av den exponerade filmens vandring
genon laboratoriets olika procedurer till klipp- och körrummen i den s.
k. Paviljongen och till Kasematternas brandsäkra förvaringsceller.
Sedan bild- och ljudnegativen exponerats i ateljéerna överföres de till
laboratoriet för vidare behandling. Denna består närmast i att de
framkallas, vilket sker i maskiner. Därpå föjer en utrensning av sådana
tagningar, som av en eller annan anledning kasserats, varefter
återstoden sorteras efter sina scennummer och synkronläggas, vilket
tillgår på så sätt, att respektive negativ lägges över varandra efter
de vid tagningarna registrerade märkena, varefter de renklippas och
förses med s. k. synkronsladdar, vilka i sin tur äro försedda med vissa
tecken, startmärken, till ledning för kopieringsavdelningen. De båda
sladdarnas märken äro förskjutna i förhållande till varandra, så att på
den färdiga kopianljudspåret börjar 19 rutor före den första bildrutan.
Alla dessa arbeten utföras inom en avdelning, som kallas skarven.
Sedan sålunda negativen gjort synkrona, överlämnas de till en s. k.
”ljussättare”, som, med ledning av negativets olika täthet, anger vissa
siffror motsvarande bestämda ljuskombinationer i kopieringsmaskinen.
Med ledning härav upprättas ”ljuskort”, vilka insatta i respektive
maskin, förmedla inkopplingen av de för de olika scenerna utvalda
kopieringsljusen. Ljud och bild sammankopieras nu på en gemensam film.
Den framkallas, fixeras och torkas, varefter den är klar att köras i en
projektionsapparat. Detta är i mycket korta drag den principiella
gången för framställningen av en positiv kopia från ett negativ.
För att ge en föreställning om vilka kvantiteter av film och
kemikalier, som åtgå för detta ändamål, kan nämnas, att inom vårt
företag förbrukas årligen mer än 2 1/2 miljoner meter pos. film och c:a
25 ton fixernatron. Den silvermängd, som vinnas tillbaka ur de
begagnade fixerbaden, uppgår årligen till mer än 200 kg. Till
reklamfotografier åtgår 60.000 à 70.000 blad 24X30 papper och till
reklamförstoringar 4,000-5,000 kvm. per år. Ur egen djupbrunn taga vi
årligen c:a 20.000 kbm. vatten. För elektrisk ström i olika former
markera våra mätare under samma tid en så pass hög siffra som 100.000
kW.
Maskinutrustningen inom laboratoriet är av normalfilm till 16 mm. film.
Förslitningen av dessa maskiner är mycket stor och för underhållet
sörjer en relativt väl utrustad mekanisk verkstad. För utförandet av
alla de olika arbetena inom laboratoriet finnas 50 specialutbildade
tjänstemän.
Paviljongen.
Ordet paviljong ger lätt idéassociation av en rendez-vous-plats eller
annat idylliskt. På sätt och vis kan det ligga någonting i det, ty
paviljongen är verkligen till sist mötesplatsen för all film, som är
under arbete. Här ordnas de olika filmscenerna i den följd de äro
tänkta och här klippes och sammafogas bit för bit i det stora puzzle,
som till sist skall representera författarens, regissörens och alla
medhjälparnas tanke och verk och, när den färdiga filmen slutligen
visas i något av körrummen, även producentens förhoppningar om ett ur
såväl konstnärlig som finansiell synpunkt fullödigt verk.
Kasematterna.
I en betongbyggnad, på behörigt avstånd från övriga byggnader, förvaras
större delen av vårt filmförråd, såväl råfilm som exponerade negativ.
Byggnaden innehåller 20 celler försedda med sprinkler och vardera
rymmande 1.500 kg. film, varför således hela bygganden innehåller ej
mindre än 30 ton. En betydande och farlig kvantitet film.
H. J.
Några
rader ur jubileumsskriften
Svensk Filmindustri tjugofem år, från 1944
All framkallning sker numera i maskin. Till detta disponerar SF två
dubbelsidiga Debrie-framkallningsmaskiner för framkallning av positiv
film, vardera med en kapacitet av 1.600 m. film per timma, en
Debrie-maskin med en kapacitet av c:a 200 m. negativ bildfilm per timma
och en Multiplex Debrie-maskin för framkallning av smalfilm.
Genomsnittligt passera dagligen c:a 10.000 meter film genom
framkallningsmaskinerna.
För
kopiering finns tre moderna Debriemaskiner, varav den ena är försedd
med en anordning som möjliggör inkopiering av texter samtidigt som
negativet kopieras. Dessa maskiner har vardera en avverkningsförmåga av
600 m. per timma. Dessutom finns 10 Duplex- och 3 Bell &
Howell-koperingsmaskiner, vilka fortfarande göra tjänst trots sin
ålder. De äro nämligen med från stumfilmens dagar.
G. H. Jakobsson.