Regissörspaviljongen

Previous Home Next

pavilj_133

© AB Svensk Filmindustri

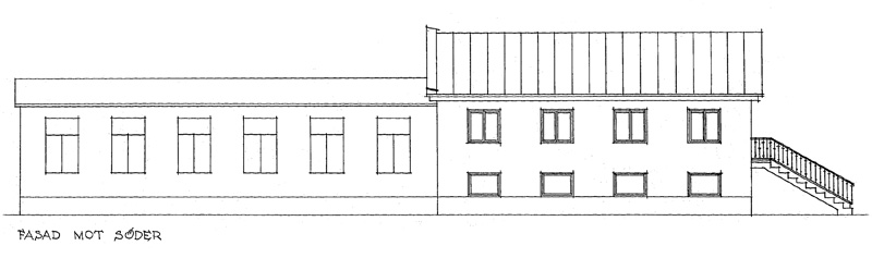
”I närheten av laboratoriet ligger en mindre paviljong, där regissörerna taga sina verk i betraktande och klippa ihop filmerna.”
Ur broschyren Aktiebolaget Svensk Filmindustris ateljéer, 1920





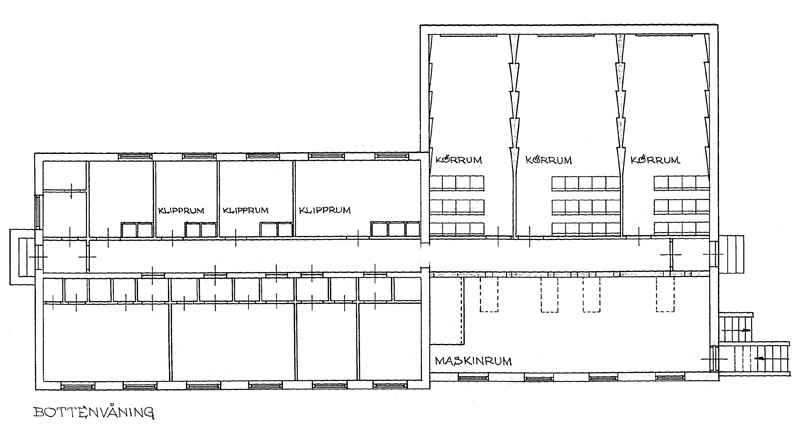
SF anställde sin första filmklippare 1933, och allteftersom det blev
fler med det yrket i Paviljongen fick regissörerna maka på sig.

1938 byggdes Paviljonen ut med tre visningsrum,
ett gemensamt maskinrum samt ett konferensrum.
Konferensrummet låg under maskinrummet.



Till startsidan