| Klädlogebyggnaden |

© AB Svensk Filmindustri
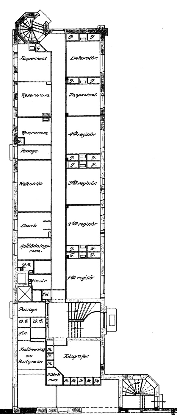
| ”Klädlogebyggnaden
är i fyra våningar. I bottevåningen ha regissörer och inspicienter sina
rum, och där hålla även fotograferna till. Första och andra våningarna
inrymma klädloger, 10 i var med plats för 20 personer, herrar 1 tr. och
damer 2 tr. upp. I båda våningarna finnas duschrum samt foyer. I fjärde
våningen äro skrädderiverkstaden och garderoben inrymda. Till källaren
har den stora värmecentralen förlagts, från vilken alla nybyggnader på
området uppvärmas.” Ur broschyren Aktiebolaget Svensk Filmindustris ateljéer, 1920 |

| Fyra mässingsklockor till skydd för lika många glödlampor, så förmodligen en tystnadssignal, en uppmaning till lugn och ro. Ringklockor, som gjorde folk på gårdsplanen uppmärksamma på att en inspelning skulle starta, fanns troligen under de båda kåporna som flankerar brädan med lampor. |


![]() |
![]() |
| — Källarvåningen — |
— Bottenvåningen — |
![]() |
![]() |
| — Mellanvåningen — |
— Andra
våningen — |
![]() — Tredje våningen — |
|