Nya Filmstaden
Svensk Filmindustri
ansökte den 25 juni 1968 om byggnadslov för
uppförande av en envånings kontorspaviljong och en garagebyggnad
(ljusrött på situationsplanen nedan), samt
en förbindelsegång mellan den nya kontorspaviljongen och de
intilliggande gamla förråds- och verkstadsbyggnaderna (ljusblått).
Ansökan beviljades
den 19 juli 1968.
|
Av situationsplanen
framgår att man hade för avsikt att inhägna
den nya kontorspaviljongen, det gamla verkstadskomplexet, Studio 5
& 6 samt AB Film-Tekniks byggnader. Och så blev det.
Planerna på en ny
kontorspaviljong och ett nytt garaget övergav man däremot.
De gamla verkstads- och förrådsbyggnaderna, ihop med Studio 5 & 6,
fick duga. Chef för ateljéverksamheten blev
Lars-Owe
Carlberg. Kamerachef Arne
Lagercrantz.
Svenska Dagbladet den 6 april 1969:
Sveriges Hollywood, Filmstaden i Råsunda, är inte längre vad det varit,
en tummelplats för giganter som Mauritz Stiller och Victor Sjöström. Av
områdets 52.000 kvm upplåts hälften för andra ändamål. På andra hälften
finns filmlaboratorium, filmlager och basstation för
inspelningsverksamheten. Av de 160 tidigare anställda är knappt en
fjärdedel kvar.
|
AB Film-Teknik tog över ansvaret för Nya Filmstaden, med
ateljéer och rekvisitaförråd, från 1 september 1970.
Affärsidén var att hyra ut till fria producenter, och till Svensk
Filmindustri.
|
1: laboratorium, 2: ljudavdelning, 3: ateljéer, 4:
produktionsavdelning, 5 exteriörområde, 6: filmlager.
Annons i Dagens Nyheter och
Svenska Dagbladet
den 17 januari 1971:
Kom hit med ditt
filmteam så skall vi klara resten. Det kan vi idag
göra på Film-Teknik i Solna. Företaget är nu helt anpassat till att ge
filmproducenter och andra filmbeställare fullständig filmservice. Här
finns produktionsledning och ateljéer med produktionsutrustning för
såväl 35 som 16 mm inspelning. Här finns en mobil enhet för
exteriörinspelningar. Vi har ljudavdelning och laboratorium. Och vi har
ett filmlager, om samtidigt sköter merparten av den svenska
filmdistributionen.
Allt detta är
samlat på ett område — nya Filmstaden — vid Näckrosvägen
i Solna. Det betyder, som vi ser det, rationell filmproduktion. Det
betyder färre steg, sparad tid — och därmed vettigare kostnader. Det
enda nu behöver göra är att komma ut till oss och ta manuset med —
antingen det gäller en 3 timmars långfilm eller en 30 sekunders
reklamfilm. Sen ordnar vi en paketlösning som passar just Ert projekt
från manus till färdig film.
|
Men det visade sig svårt att hyra ut ateljéerna eftersom
bygget av tunnelbanan mot Järva (Blå linjen) störde inspelningsarbetet.
Expressen
den 27 maj 1973:
1970 small det
första sprängskotten under Filmstaden i Solna.
Tunnelbanan till Järva skulle dras fram under filmateljéerna. Ingmar
Bergman höll på att spela in ”Beröringen”. Under varje sprängning
tvingades man stoppa tagningarna. Sedan dess har inga filmer spelats in
där. Bergman och andra regissörer ville inte göra några nya
inspelningar så länge T-banebygget pågick. Det hävdar AB Film-Teknik
och kräver nu landstinget på 3 miljoner i skadestånd.
(…)
—En dag kom det upp
en ingenjör och berättade att tunnelbanan skulle
fram under Filmstaden. Sen började eländet. Det gick inte att göra
några inspelningar under sprängningarna, säger direktör John Egemark. |
Film-Tekniks inspelningsverksamhet nämns bara i 1971 års
telefonkataloger. 1972 är uppgifterna bortplockade.
Ateljéverksamhetens chef, Lars-Owe Carlberg, började arbeta för Bergman på Fårö i
början av 70-talet.
De kungliga teatrarna (Operan och Dramaten) hyrde Stora- och Nya
ateljén och använde dem som provisoriska dekorverkstäder 1969-76.
Statens scenskola höll under några år till i Lilla ateljén men lämnade
över till Riksteatern 1971.
Riksteatern tog större delen av Filmstaden i besittning 1976, men
flyttade till Hallunda 1989.
Uppemot ett 40-tal småföretagare kom därefter att hyra lokaler i
Filmstaden. Det var filmbolag, konstnärer, arkitekter och snickare. En
del utrymmen kom även att fungera som replokaler för musiker.
Sandrews och Europa Studios hyrde ateljéer i Filmstaden i Råsunda 1994
för inspelningen av filmen Alfred, i regi av Vilgot Sjöman.
Anders Birkeland på GF
Studios AB (GF = Gamla
Filmstaden)
hyrde lokaler i Filmstaden från 1995.
År 2001 övergav Svensk Filmindustri Interprinthuset i Kungens Kurva och flyttade sitt
huvudkontor till Råsunda
Filmstad. Bygget av bostäder i området inleddes 2002. |
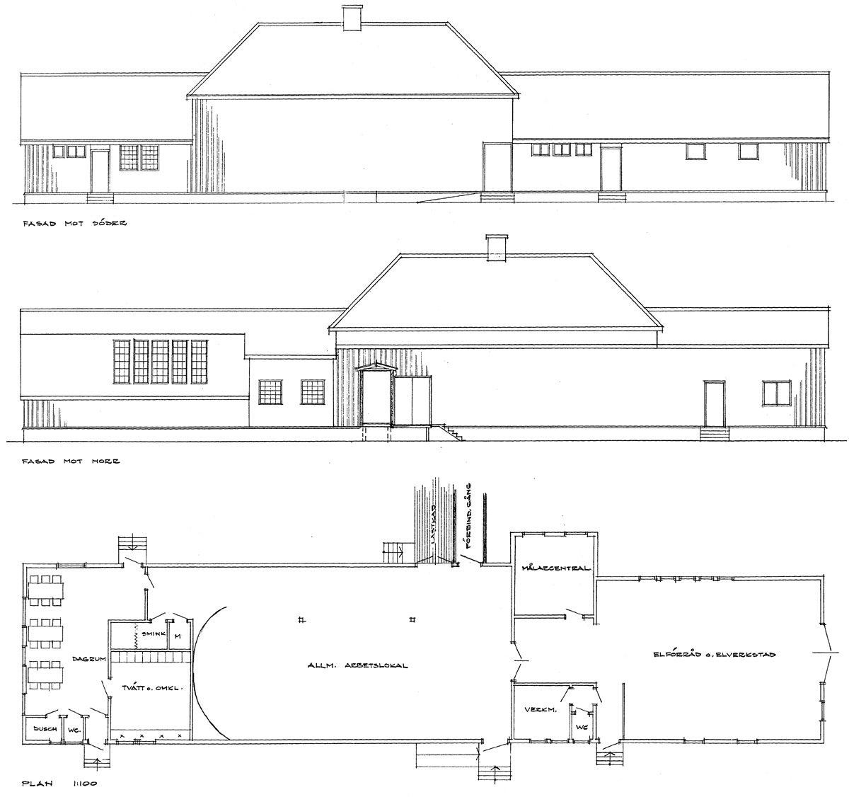
Den gamla verkstadsbyggnaden, ombyggd för Svensk Filmindustris
verksamhet i Nya
Filmstaden.

Kontorspaviljongen som aldrig byggdes.
Till
startsidan
|