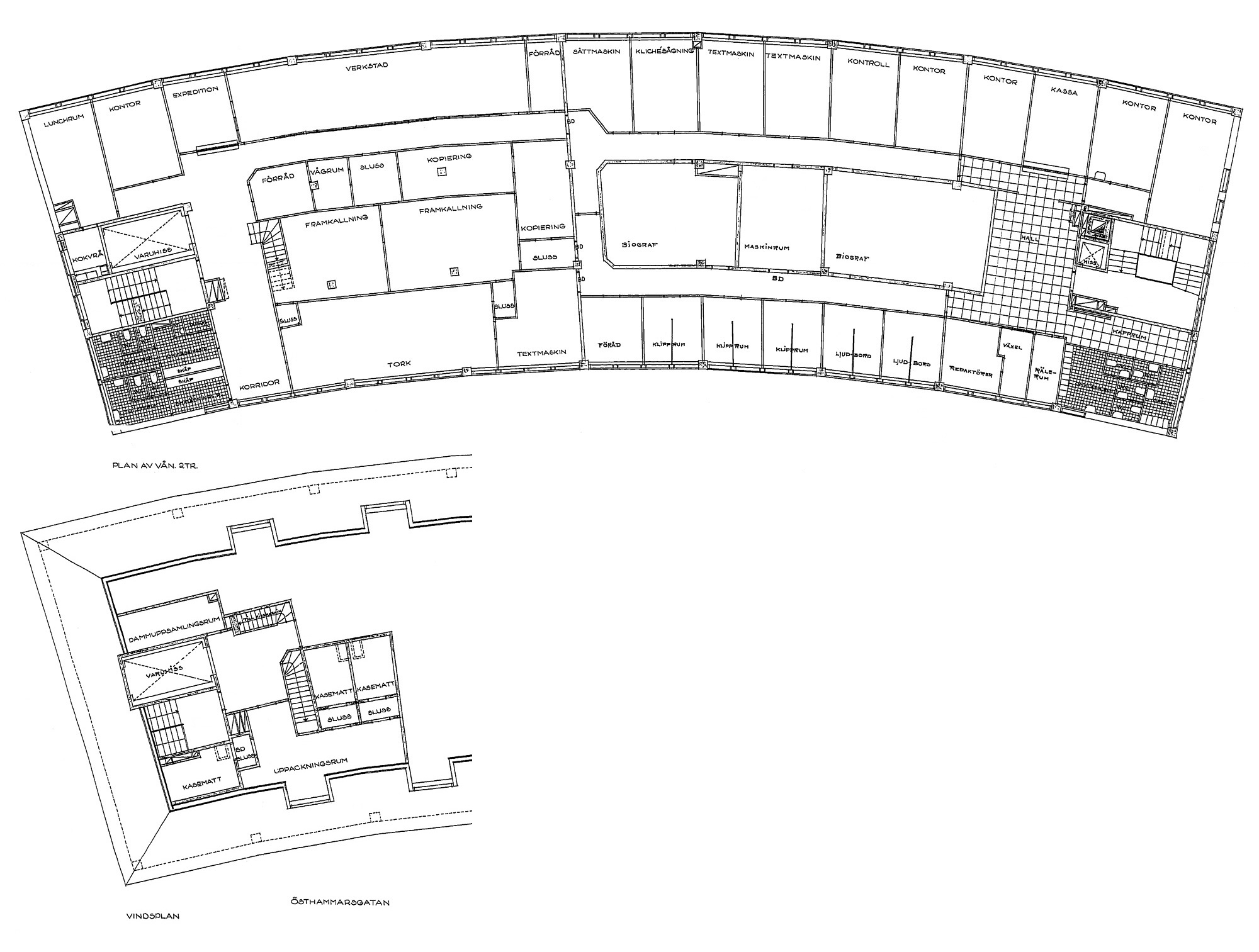
Planritning från 1947 över Idealfilms lokaler
på Sandhamnsgatan i Stockholm





Till startsidan