Film-Tekniks
ljudavdelning

AB Svensk Filmindustri
ansökte den 22 december 1965 genom John Egemark om bygglov för Film-Tekniks ljudavdelning. Huset skulle
byggas bakom filmlaboratoriet på Näckrosvägen i Solna. Bygglov beviljades 24 januari 1966.
Byggnadskonstruktör var SIAB (Svenska Industribyggen AB), som även
utförde byggarbetet. Byggnadens mått skulle bli 19,64 x 38,64 meter.
Tre våningar. Slutbesiktning skedde den 21 april 1967.
Ansvarig för för
akustiken var Lennart Ljungberg på SELA (Svenska
Elektronik Apparater AB). Resultatet
blev mycket
lyckat. Det var även SELA som
installerade mixanläggningar och
överspelningar. Ljudavdelningen började
tas i bruk 1968.
|
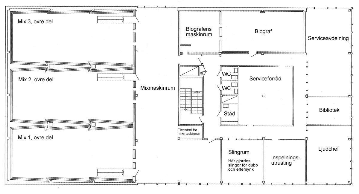
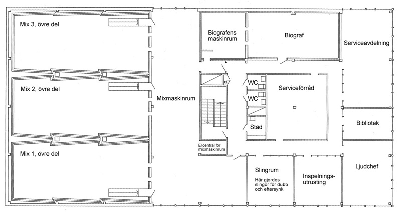
Markplanet
|
Planritningen ovan visar rumsindelningen
när huset var nytt.
Klicka på den om du vill se den i
större format.
Grundtanken med Film-Tekniks
ljudavdelning var att huset skulle ha resurser för allt från inspelning
till optiskt ljud.
Storleken på projekt visar att de som planerat haft en stark tro på
ljudets betydelse för filmen. Men de fick inte allt de önskade sig.
Från början var det nämligen tänkt att man skulle bygga två stora
mixrum på
ljudavdelningen. De ansvariga bedömde dock att det nog skulle bli
bättre
ekonomi i verksamheten om man byggde tre lite mindre rum på samma yta.
Och
så fick det bli.
Mix 1 användes huvudsakligen för mix av långfilmer. Mix 2 var avsedd
för dokumentär- och industrifilmer och 3:an för eftersynk, dubb och
synkeffekter.
Filmdukarna var fästa i ett stort metallgaller. Bakom var plats för
högtalare. I förråden
innanför stod slutsteg och senare även plåtekon och högtalarnas delningsfilter.
Därinne fanns dessutom vatten och avlopp för synkeffekter. I alla
mixrum fanns golvluckor
framför dukarna som dolde stenplattor, asfalt, trägolv, grus och sand för tramp.
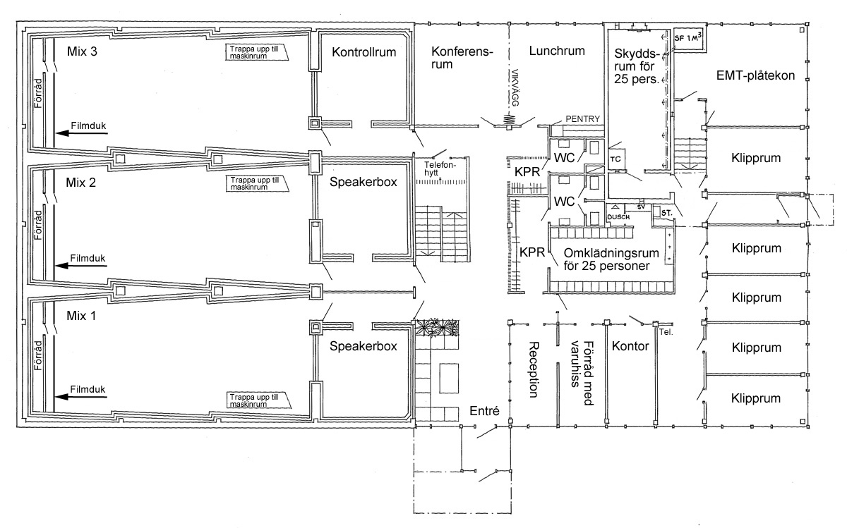
Flera rum till höger om receptionen var egentligen ämnade för tecknad
film. Men planerna skrotades och lokalerna användes i stället som
klipprum för uthyrning.
De som hyrde klipprum i den delen av huset hade egen ingång från gaveln
och kunde
komma och gå som de ville. Dörren vid receptionen var låst på kvällar
och helger så på udda tider hade klippfolket bara tillgång till sin del
av huset.
Och de hade tillgång till EN gemensam telefon, vilket ansågs helt
normalt på den tiden.
Så småningom började Film-Tekniks textavdelning använda det rum som här
är märkt ”Plåtekon” för sin textkamera. Det rummet var nämligen
nedsänkt, hade stor takhöjd och egentligen byggt för en stor
animationskamera modell Oxberry. Plåtarna flyttades till de smala
rummen bakom dukarna i Mix 1 och 2.
Textavdelningen blev så småningom avknoppad och var en tid inhyrd i
Film-Tekniks lokaler innan den försvann därifrån. Textfotografen ROBE
(Rolf Bergström) var inblandad i den verksamheten.
|
Mellanplanet
|
Klicka på planritningen om du vill se
den
i
större format.
I anslutning till Mix 1, i det stora maskinrummet på mellanplanet, stod
rader med ombyggda AGA-perfomaskiner för 16, 17,5 och 35 mm magnetfilm.
De flesta hade
tidigare stått på
SF:s ljudavdelning. Nu hade Lennart ”Snöret” Gustafsson sett till
att de blivit renoverade
och fått ny elektronik.
Vid trapphusväggen, mitt emot Mix 2, stod sex nyanskaffade
perfomaskiner tillverkade
av MWA. En var kombi 16/17,5/35
för inspelning, de övriga var avspelningsmaskiner för 16 mm. Mitt emot Mix 3 stod
ett par
AGA-maskiner. I början på 1980-talet köpte Film-Teknik
åtta nya MWA-maskiner med kapstandrift.
Alla projektorer för 35
mm, både i
mixmaskinrummet och i bions
maskinrum,
var tillverkade av AGA. Mix
1 hade
dessutom en 16 mm projektor från Bauer. Den hade följt med från
Filmstaden. Mix
2 hade en stor Zeiss-projektor för 16 mm.
|
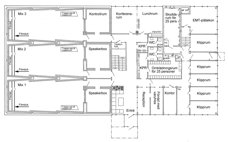
Övre planet
|
Klicka på planritningen om du vill se
den
i
större format.
Storbildsmikroskopet, i anslutning till den optiska överspelningen,
användes för att kontrollera den optiska ljudfilmen.
När Evald Andersson och
Uddo Funck gick i pension tog Harry Engholm och senare Henry Gustavsson
över effektarkivet och så småningom flyttades både musik och effekter
ner till konferensrummet på markplanet.
Av
gammal vana har jag
skrivit ”ljudläggning” på planritningen ovan. Ett bättre ord är
naturligtvis
”ljudsättning”. Eugén Hellman var först i Sverige med att
sätta ljudeffekter till film, och det var ”ljudsättare” han kallade sig
när han beskrev sin ljudsyssla på Svensk Filmindustris laboratorium i
Filmstaden, där han även var negativklippare och ljussättare. Du kan läsa om honom här.
Stort
tack till Hans Eric Ahrn, Lasse Lundberg
och Björn Selander som hjälpt till att minnas.
|
Mix 1 på Film-Tekniks
ljudavdelning.
Mixbordet var tillverkat
av Neumann, 20 ingångar och 4 utgångar. (2:an och 3:an hade
EMT-mixbord, 6 in, 1 ut.)
Högtalaren
kom från Klein+Hummel, modell OX, ett aktivt trevägssytem som hade
måtten 147 x 44 x 40 cm och vägde 55 kg. (Så småningom byggde Krister
Amneus några högtalare som användes en kort period. Till mixningen av
ABBA - the Movie, 1977, monterades Altec Lansing-högtalare i Mix 1.)
Bandspelaren i bildens vänsterkant är en Studer A80.
Mixlokalernas användning och utrustning kom förstås att förändras genom
åren. |
Foto:
Lasse Lundberg, Cinepost
|
Burken
som står bland telefonerna längst ut till höger är ett filter, ett Klein+Hummel UE-100.
Neumann-bordet
hade passiva filter typ PEV.
Klein+Hummel modell OX.
|
För
att få de olika enheterna i mixmaskinrummet att gå synkront användes en
Rotosyn-anläggning som bestod av en frekvensomformare, mekaniskt
förbunden med en bromsmotor*. Alltsammans vägde 260 kg, och hade måtten
160 x 50 x 40 cm. Anläggningen var bullrig och därför placerad
i fläktrummet uppe på ljudavdelningens tak.
Alla
maskiner för synkron drift hade trefasmotorer på den här tiden, och
Rotosynen levererade den trefasspänning som behövdes, från 0-50 Hz vid
start, och 50-0 Hz vid stopp.
Rotosyn
tillverkades från början av 1950-talet av
Siemens-Klangfilm och fanns i stort sett överallt där det mixades film.
Innan vi fick Rotosyn till filmbranschen synkroniserades maskinerna
ofta med
hjälp av en genomgående axel.
* En bromsmotor är en standardmotor med
påmonterad elektromagnetisk broms. Den används i drivsystem som kräver
en absolut låsning.
|
Rotosyn
 |
 |
Manöverenhet till Rotosyn |
Manöverenhet av äldre modell |
Den moderna manöverenheten har åtta tryckknappar. I den övre raden:
Worwärts (fram), Rückwärts (back), Schnell (snabb, 2x), elektr. Welle
(maskinerna låser till varandra) och synchron. Lauf (kör synkront). I
undre raden: Aus (av), Kurzlauf (krypkör) och synchr. Auslauf (stanna
synkront).
|
Foto:
Lasse Lundberg, Cinepost
|
Lasse Strandmark laddar en
kombimaskin från MWA. I bakgrunden står en rad 16 mm-maskiner
som i huvudsak servade Mix 2. Till höger skymtar Rotosynväxeln som
gjorde det möjligt att
köra vilken som helst av maskinrummets perfomaskiner från antingen Mix
1, 2 eller 3.
Foto:
Lasse Lundberg, Cinepost
|
Överspelningsrummet. En Telefunken
M5 i förgrunden.
I bakgrunden en Ampex med en synchronizer
från Magna-Tech.
Kontrollbordet var tillverkat av
SELA.
Perfomaskinerna, tillverkade av AGA, stod bakom en vägg
med stora glasrutor till höger utanför bild.

Laboratoriebyggnaden
i förgrunden, ljudavdelningen
bakom.
Klicka här om du vill läsa om
Film-Tekniks laboratorium.
Här kan du läsa om Film-Tekniks historia.
Här berättar Hans Eric
Ahrn om sin tid på Film-Tekniks ljudavdelning.
Till
startsidan
|