Europa
Films studiolokaler, 1941
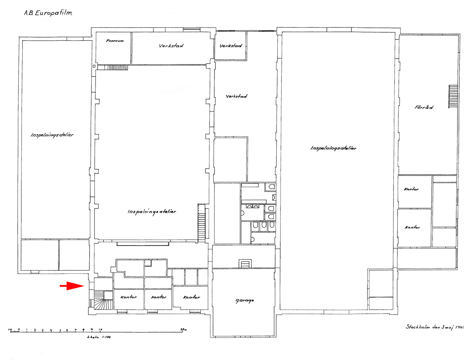
Europa Films studiolokaler.
Entrén vid den röda
pilen.
Europa Films första mixanläggning
kan ha legat i de två rummen längst ner i den vänstra
inspelningsateljén, den som kom att kallas för A-hallen.
Men än så länge är det ingen som vet med säkerhet.
Inspelningsateljén till vänster kom alltså att kallas
för A-hallen. Den blev så småningom Stora mixen och
Musikstudio 2. Mittenhallen är B-hallen och den högra
C-hallen. Trappan till höger innanför entrédörren ledde
upp till en kantin.
Den stora verkstaden mellan A- och B-hallen var ett
snickeri. Lokalerna högst upp, bakom B-hallen och ut mot
Bällstaån, var smedja, el- och finmekanisk verkstad.
B-hallens övervåning rymde sminkloger, handförråd för
rekvisita samt rum för verkmästare.
Garaget var 8,5 meter djupt och hade stor takhöjd. När
Europa Film började slå sig på musikinspelning i B- och
C-hallarna användes det här utrymmet som kontrollrum och
kallades då Ljudgaraget.
|
Del av garageritning från 1936.
Europa Films
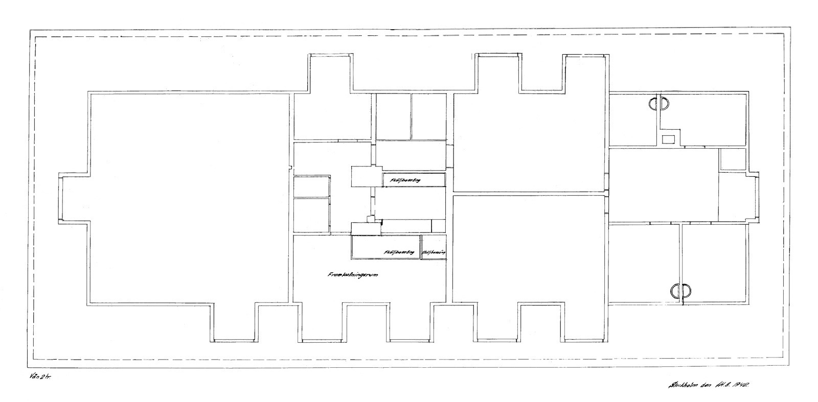
administrationsbyggnad, 1942
Administrationsbyggnadens bottenplan.
Serviceavdelningen flyttade så småningom in i lokalerna längst
till vänster,
annars var det mest kontor på
det här planet.
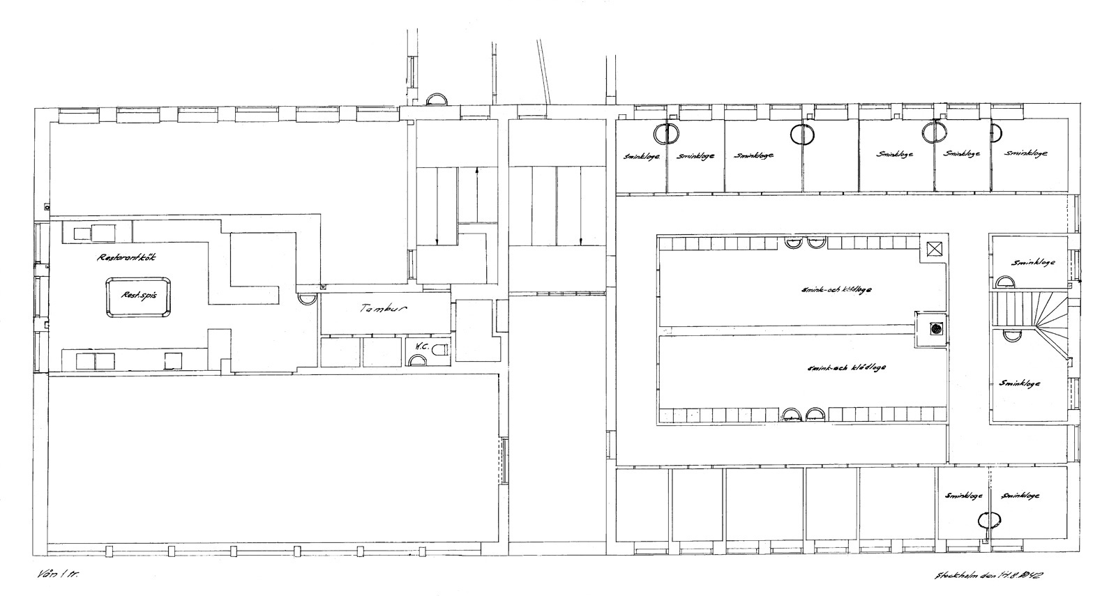
Administrationsbyggnaden, en trappa upp. Restaurangen till
vänster.
Den högra delen med sminkloger blev med tiden klipprum och
överspelningsrum.
Det fanns två matsalar på
Europa Film i Mariehäll. En med vita dukar på borden för
direktörer, regissörer och skådespelare, och en enklare
för arbetare. Så var det även på Svensk Filmindustris
huvudkontor och ute i Filmstaden.
Den stora, längst ner till vänster, var arbetarnas. Den
lilla, högst upp till vänster, var ledningens.
|
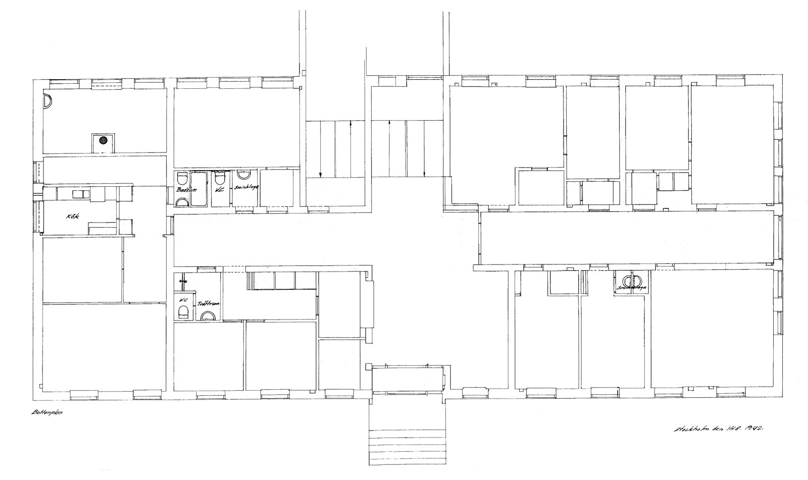
Adminstrationsbyggnadens översta våning.
I mitten på ritningen står ”framkallningsrum” och tre
”sköljbassäng”.
Om det någonsin blev på det viset återstår att ta reda på.
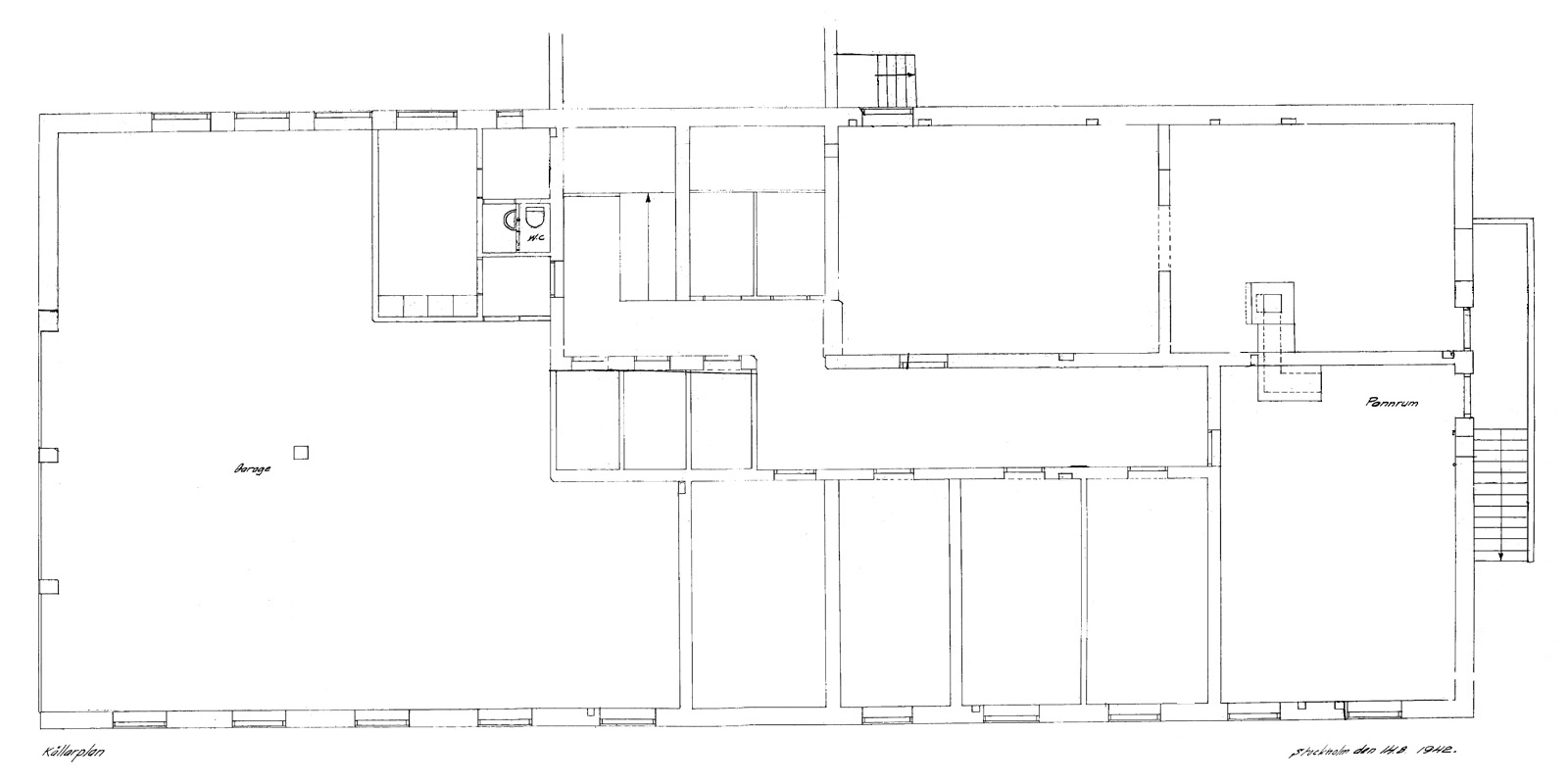
Administrationsbyggnadens källarplan.

Så här såg restaurangen ut från början av 60-talet och framåt.
Klicka här om du
vill se en plan över Europa Films lokaler åren 1970 och 2000.
Europa Film i
Mariehäll, omkring 1945
Det
vänstra huset i skissens
överkant är Europa Films administrationsbyggnad som
togs i bruk 1942. Höger om den syns de tre ateljéerna
med sina sadeltak.
I den lilla fristående byggnaden, hitom
ateljékomplexet, fanns en snickar-, målar- och
gipsverkstad.
Till höger i skissens mitt, vinkelrätt mot verkstaden,
syns en
stor förrådsbyggnad för kulisser och rekvisita.
Den var byggd av trä i två våningar
och stod färdig
för slutbesiktning i augusti 1942.
Till vänster i
nederkant sträcker sig
den L-formade kulissgatan, som även
tjänade
som förråd. Det
började planeras 1944 och slutbesiktigades året därpå.
Till höger längst ner kasematterna med sina
skorstenar. Anläggningen var täckt av jord och liknade
ett skyttevärn.
|
Verkstadsbyggnaden, ritning från 1936.
Portvaktsstuga, ritning från 1937.
Portvaktsstugans placering vid den gamla A-hallen. Ritning från
1937.
|